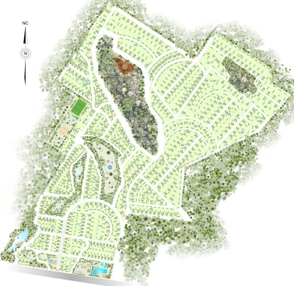
Grundstück Paraguay | Land kaufen Abschnitt 21 – Nr.231 | 1120qm | Erschlossen | KAUFOPTION – RESERVIERUNG
Grundstückspreis: 39198,55€
| Abschnitt |
21 |
|---|---|
| Grundstücksfläche |
1119,9585 |
| Grundstück Nr |
231 |
| Grundstückspreis |
39198,55 |
| Zustand |
Erschlossen |
€150,00
Nicht vorrätig
Wichtig: Sie kaufen hier nicht das Grundstück sondern eine Option - bzw. eine Reservierung für einen begrenzeten Zeitraum. Die Reservierungsgebühr wird auf unserer Website mit dem Endbetrag angegeben. Soweit Steuern und Abgaben, wie etwa eine "Umsatzsteuer" oder "Value added tax" oder "Impuesto sobre el valor añadido", anfällt, haben wir diese aus Ihrer Zahlung zu entrichten.
Die tatsächliche Grundstücksgröße kann um bis zu 5 Quadratmeter abweichen. Eine exakte Angabe der Fläche wird im Kaufvertrag festgehalten.
Sie haben Fragen zu diesem Grundstück?
Anderer Text
45
People watching this product now!



